Leach Public Library

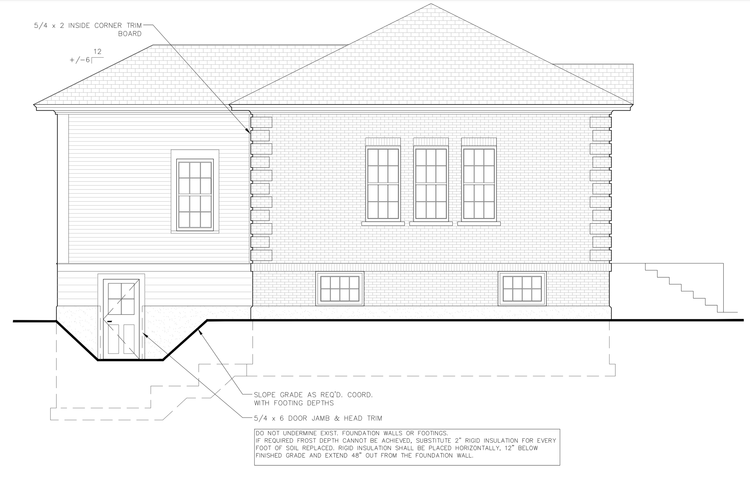
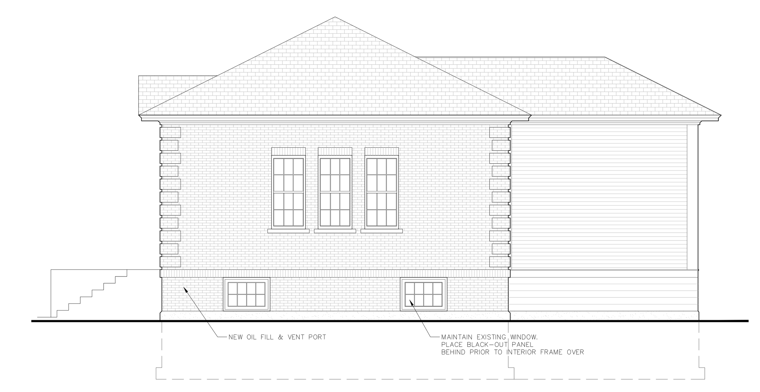
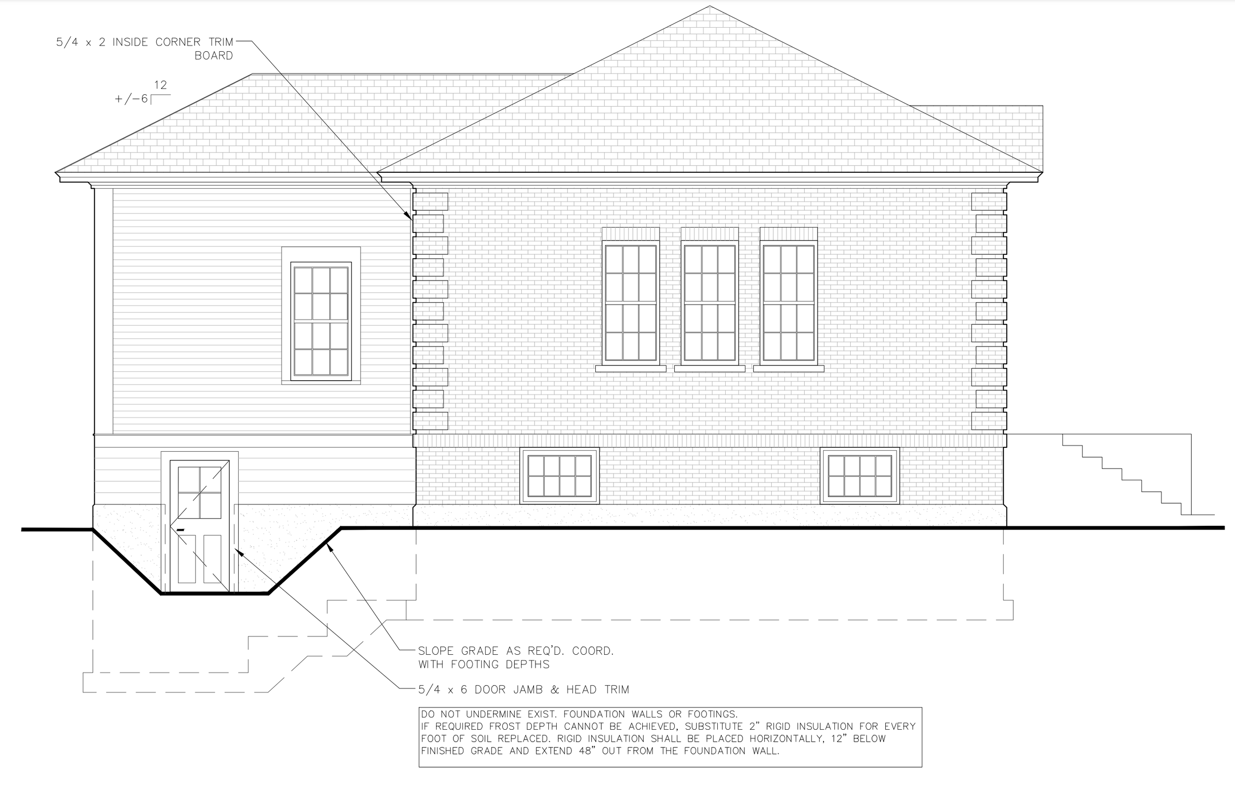
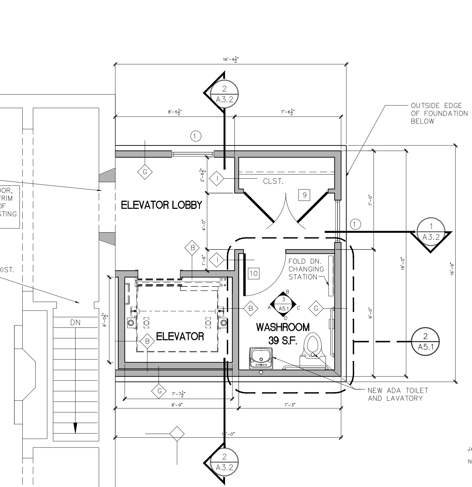
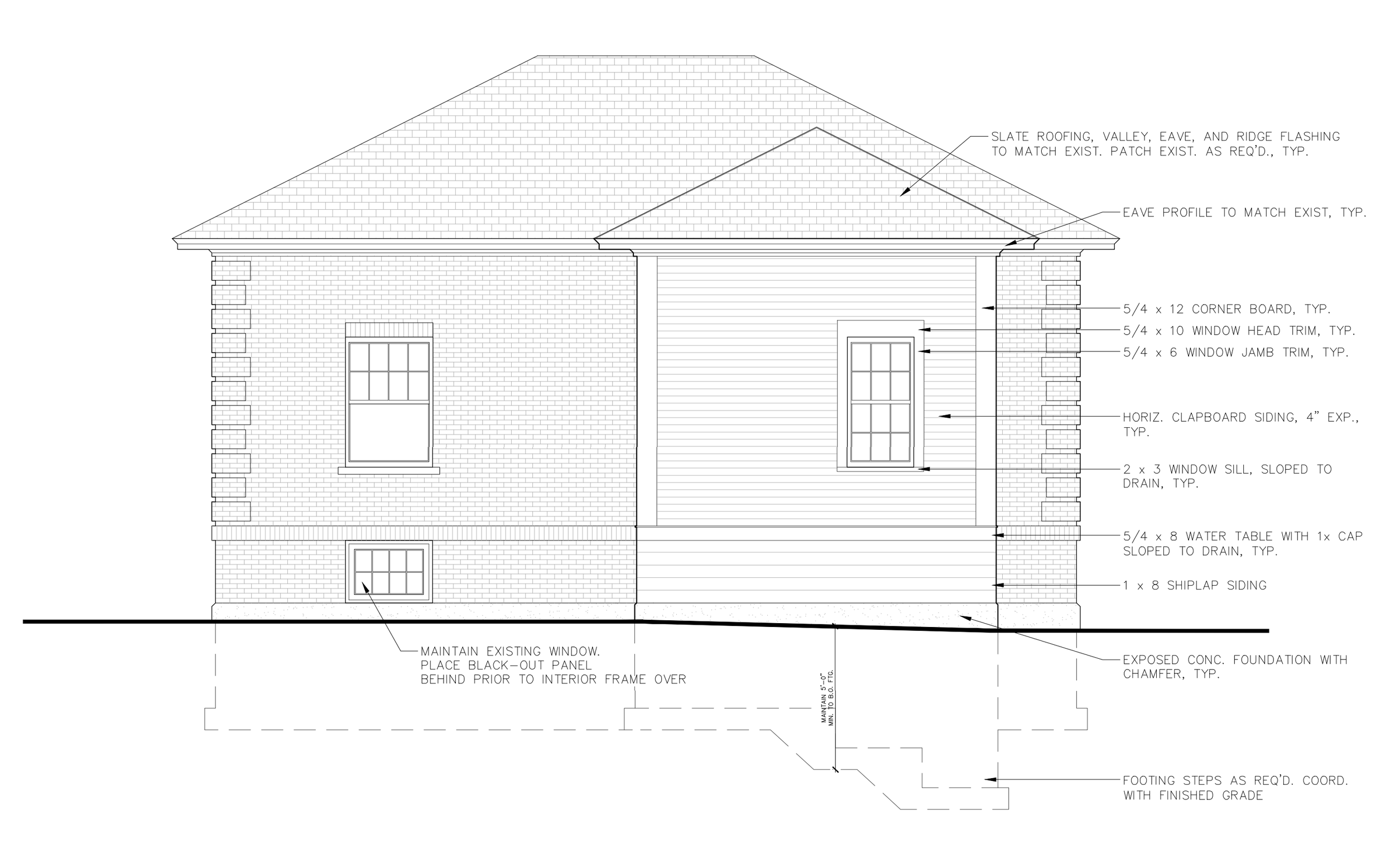
This renovation and addition to the Leach Public Library in Irasburg, Vermont brings this historic building up to code with ADA accessibility. Through an addition to the back of the library accessible egress, an ADA accessible lavatory, and an elevator have been added.


Contact
Leach Public Library

Location
Irasburg, Vermont

Project Category
Municipal

Services
Architecture, Permitting, Building

Date
2023

"Coe + Coe Architecture are experts at assessing older buildings and devising the best course of action for businesses and investors.“ — Keone Maher, Parker Pie Co.